I've spent days trying to find a floor plan that I like. It's difficult to find a plan that's 1,000 sq-ft.
I want:
2-bedrooms that don't share a wall
2-bathrooms (1-off the master)
Covered front porch the spans the width of the house.
Plan #1
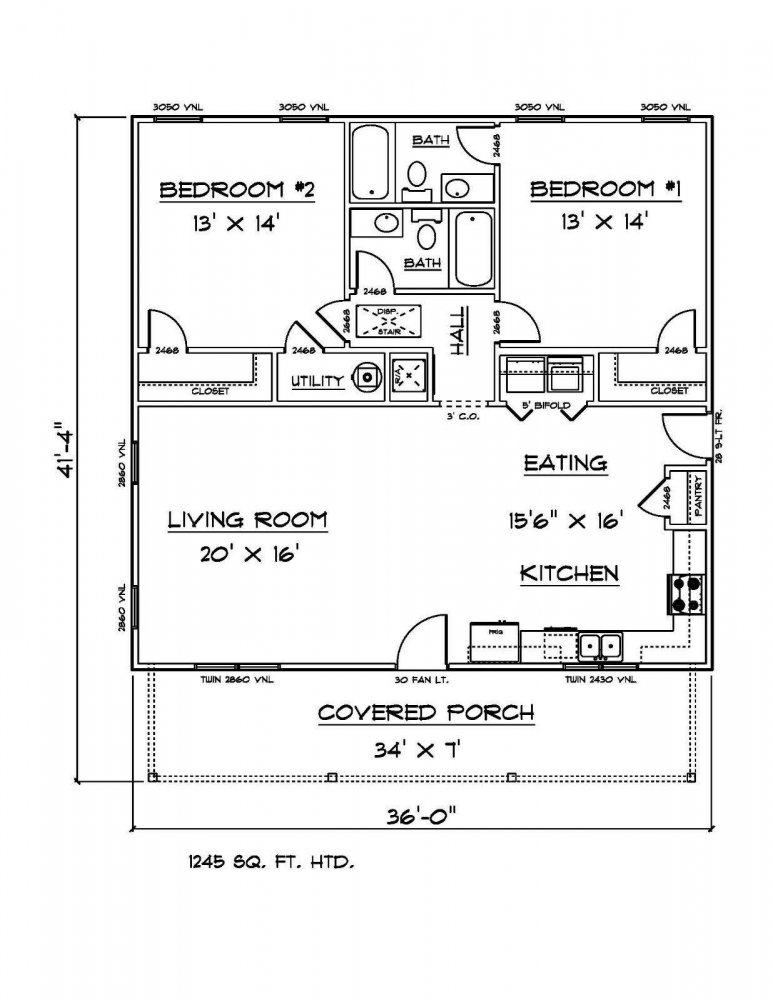
This one says it's 1,215 sg-ft, but 33' x 39' measures out to 1,287 sq-ft. If I could trim it down to 30' x 34' it would be 1,020 sq-ft. I'd move the side door in the kitchen by the pantry to the living room side. I like that the bathroom's are next to each other. Maybe this would cut down on some of the plumbing cost. I also like the door off of the bedroom. Maybe I could add a little private deck later.
I like the bedrooms separated by the two baths next to each other. Again, I'd want to trim it down to 30' x 34' or at least 30' x 36'
Plan #3
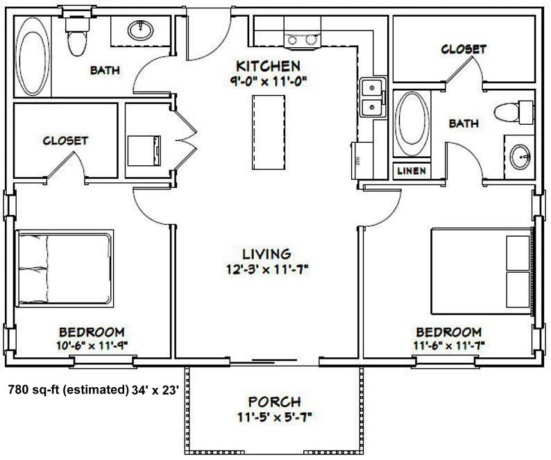
This is an interesting layout. It's only 792 sq-ft, so I'd have to add to it. If I kept the 36' width and increased the depth to 28' it would put me at 1,000 sq-ft. That would add 3' to the bedrooms and instead of having the showers for each bathroom next to each other, I could put a tub in one, and a larger walk in shower in the master.
Plan #4
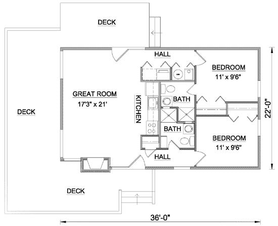
This one is roughly 782 sq-ft at 34' x 23'. I could either stretch it to 36' x 28' for 1,008 sq-ft or 34' x 30' for 1,020 sq-ft. I like how the bedrooms are on opposite sides of the house.
Plan #5
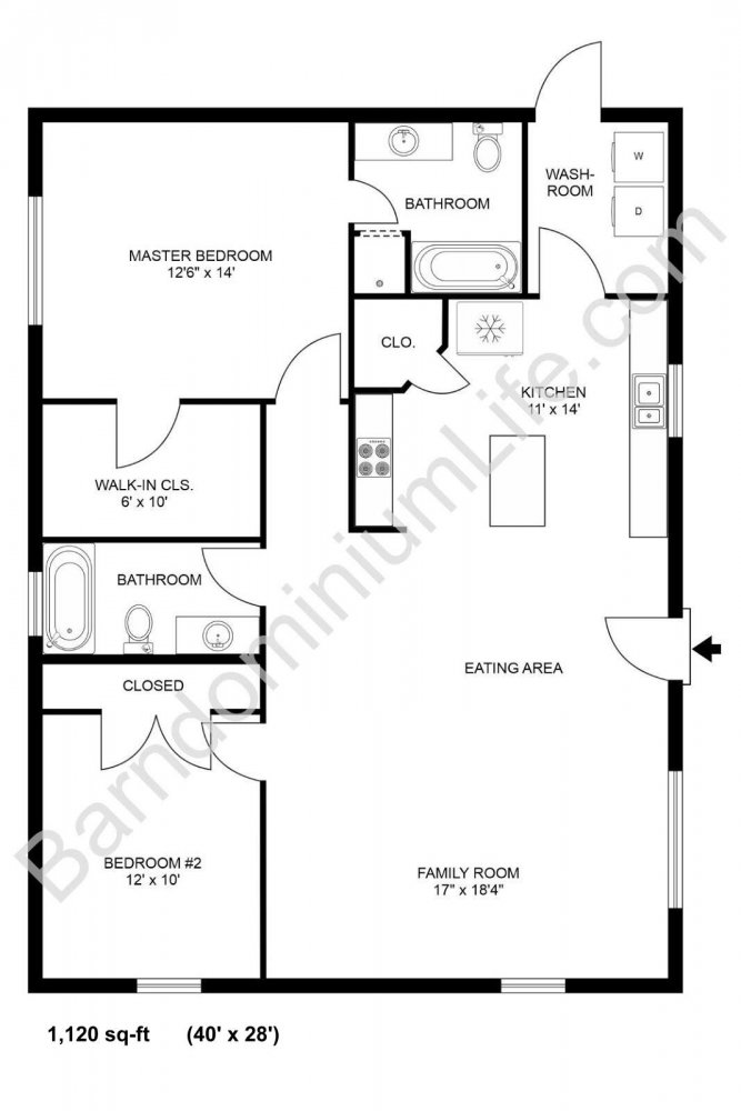
The bathrooms in this one are separated and I'm not sure if I like having the door to the spare bedroom right off of the family room.
Finding A Builder & Closing Costs:
I've been told that if I buy the lot, then get a construction loan, and then get a mortgage for it all when it's done, I'll end up having to close 3-times.
If I can come up with a builder and design before I finance this piece of property, I might be able to only have to close once.
